Leśne Echa – Etap II
Domy jednorodzinne w zabudowie bliźniaczej na sprzedaż w Sulechowie – ul. Leśne Echa.
Nieruchomość znajduje się na osiedlu domów jednorodzinnych, a jej lokalizacja w kwartale ulic w pełni zabudowanym zapewnia dodatkową wygodę.
Media
- Woda: miejska z sieci,
- Kanalizacja: do sieci miejskiej,
- Energia elektryczna: z sieci Enea,
- Gaz: z sieci PGNiG,
- Ogrzewanie: podłogowe – przygotowane pod montaż sterowników pokojowych; piętro – grzejnikowe,
- Kocioł gazowy: dwufunkcyjny (ogrzewanie i ciepła woda) z wbudowanym zasobnikiem.
Technologia budowy
- Fundamenty: żelbetowe wykonane na mokro,
- Ściany nośne: murowane z bloczków gazobetonowych na zaprawie klejowej,
- Więźba dachowa: drewniana,
- Pokrycie dachu: dachówka ceramiczna ROBEN MONZA Plus
- Ścianki działowe na parterze: murowane z bloczków gazobetonowych na zaprawie klejowej,
- Ścianki działowe na poddaszu: z płyt G-K na profilach stalowych z wypełnieniem z wełny mineralnej,
- Tynki wewnętrzne na ścianach murowanych: tynk gipsowy maszynowy,
- Sufity na parterze i poddaszu: z płyty G-K na profilach stalowych z wypełnieniem z wełny mineralnej.
Izolacje
- Ściany zewnętrzne: docieplone styropianem grafitowym gr. 20 cm, wykończone tynkiem silikonowym,
- Ściany działowe: wełna mineralna gr. 7 cm o podwyższonej akustyczności,
- Dach: wełna mineralna na suficie gr. 35 cm,
- Okna PCV 3-szybowe o niskim współczynniku przewodzenia ciepła ze skrzynkami do montażu rolet – z doprowadzeniem zasilania,
Zagospodarowanie terenu
- Teren posesji zagospodarowany z podjazdem, chodnikami i tarasem wybrukowanymi z kostki betonowej i trawnikiem.
- Posesja ogrodzona z tyłu i boku płotem panelowym.
Lokalizacja
Nieruchomość zagospodarowana na osiedlu domów jednorodzinnych w Sulechowie, w kwartale ulic w pełni zabudowanym, a droga asfaltowa z chodnikiem prowadzi bezpośrednio do osiedla. Zobacz lokalizację na mapie.
Doskonała lokalizacja – w pobliżu:
- przedszkola (700 m), szkoła podstawowa (700 m), szkoła średnia (650 m) i Uniwersytet Zielonogórski (350 m);
- centrum handlowe z marketem spożywczym (800 m);
- centrum miasta (800 m).
- bliskość węzła z drogą S3 umożliwia szybki dojazd do Zielonej Góry;
Nieruchomość blisko centrum miasta, jednak położona przy ulicy bez wyjazdu, co zapewnia ciszę i spokój.
| Cena | 695 000,00 zł |
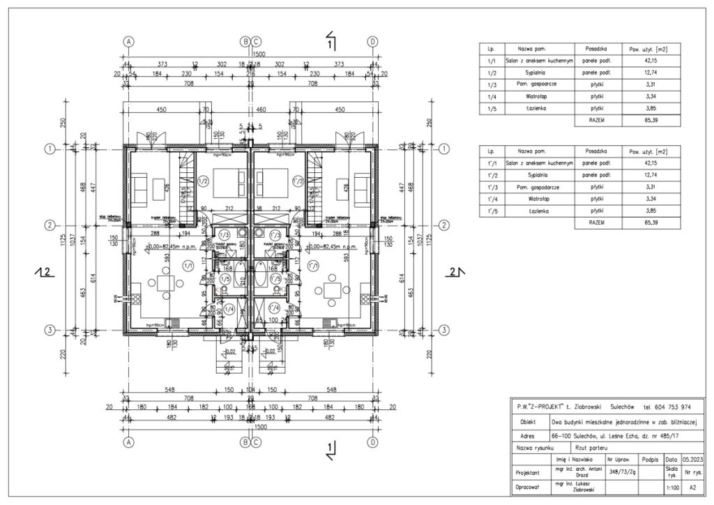
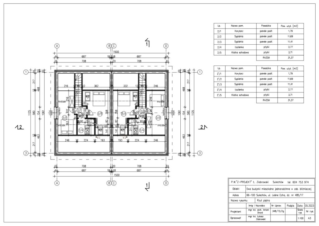
| Powierzchnia | około 105 m2 |
| Liczba pokoi | 4 |
| Zakończenie budowy | 2025 r. |
| Powierzchnia działki | około 400 m2 |




